Ningbo Hongjia CNC Technology Co, Ltd. Home / Mga produkto / Ordinaryong serye ng pag -on, paggiling at pagbabarena / X6132 Universal Lift Table Milling Machine

X6132 Universal Lift Table Milling Machine

Panimula at paggamit ng produkto
Ang tool ng makina na ito ay isang uri ng malakas na tool ng pagputol ng metal, ang tool ng makina ay may malakas na katigasan, isang malawak na saklaw ng bilis ng feed, at maaaring magdala ng mabibigat na chips ng pag -load. Ang butas ng spindle cone ay maaaring mai -install nang direkta o sa pamamagitan ng mga accessory ng iba't ibang mga cylindrical milling cutter, circular milling cutters, na bumubuo ng mga cutter, face milling cutter, at iba pang mga tool, na angkop para sa pagproseso ng iba't ibang mga bahagi ng eroplano, dalisdis, uka, butas, atbp.

+ Makipag -ugnay sa amin
  • X6132 Universal Lift Table Milling Machine

Impormasyon sa Produksyon

Pangunahing mga tampok na istruktura
1, ang base, fuselage, workbench, slide, pag-angat ng slide, at iba pang mga pangunahing sangkap ay itinapon ng mga materyales na may mataas na lakas, at artipisyal na pag-iipon ng paggamot, upang matiyak ang pangmatagalang katatagan ng tool ng makina.
2, ang pangunahing baras ng baras ng tool ng makina ay isang tapered roller bear, ang pangunahing baras ay nagpatibay ng tatlong mga istruktura ng suporta, ang higpit ng system ng pangunahing baras ay mabuti, ang kapasidad ng tindig ay malakas, at ang pangunahing baras ay nagpatibay ng pagpepreno ng enerhiya, malaki ang metalikang kuwintas, at ang paghinto ay mabilis at maaasahan.
3, ang pahalang na anggulo ng pag -ikot ng talahanayan ± 45 °, ay nagpapalawak ng saklaw ng pagproseso ng tool ng makina. Ang pangunahing bahagi ng paghahatid at ang bahagi ng feed ng talahanayan ng trabaho ay nagpatibay ng istraktura ng paghahatid ng gear, malawak ang saklaw ng regulasyon ng bilis, at ang pagbabago ng bilis ay maginhawa at mabilis.
4, ang direksyon ng Table X/Y/Z ay may manu -manong feed, mobile feed, at mobile na mabilis na pasulong, ang bilis ng feed ay maaaring matugunan ang iba't ibang mga kinakailangan sa pagproseso; Ang mabilis na feed ay maaaring gawin ang workpiece na maabot ang posisyon ng pagproseso nang mabilis, ang pagproseso ay maginhawa at mabilis, at ang oras na hindi pagproseso ay pinaikling.
5, X, Y, Z Tatlong Patnubay sa Patnubay sa Gabay sa pamamagitan ng ultra-audio quenching, katumpakan ng paggiling at pag-scrape ng paggamot, na may sapilitang pagpapadulas, pagbutihin ang kawastuhan, palawakin ang buhay ng serbisyo ng makina.
6. Ang aparato ng pagpapadulas ay maaaring pilitin ang pahaba, pahalang, L, at patayo na tingga ng tornilyo at gabay sa riles upang lubricate, bawasan ang pagsusuot ng tool ng makina at tiyakin ang mahusay na operasyon ng tool ng makina; Kasabay nito, binabago ng sistema ng paglamig ang laki ng daloy ng coolant sa pamamagitan ng pag -aayos ng nozzle upang matugunan ang iba't ibang mga pangangailangan sa pagproseso.
7, disenyo ng tool ng makina alinsunod sa prinsipyo ng ergonomiko, madaling mapatakbo; Ang panel ng operasyon ay dinisenyo na may mga makasagisag na simbolo, na kung saan ay simple at madaling maunawaan.

Pangunahing teknikal na mga parameter ng mga tool sa makina

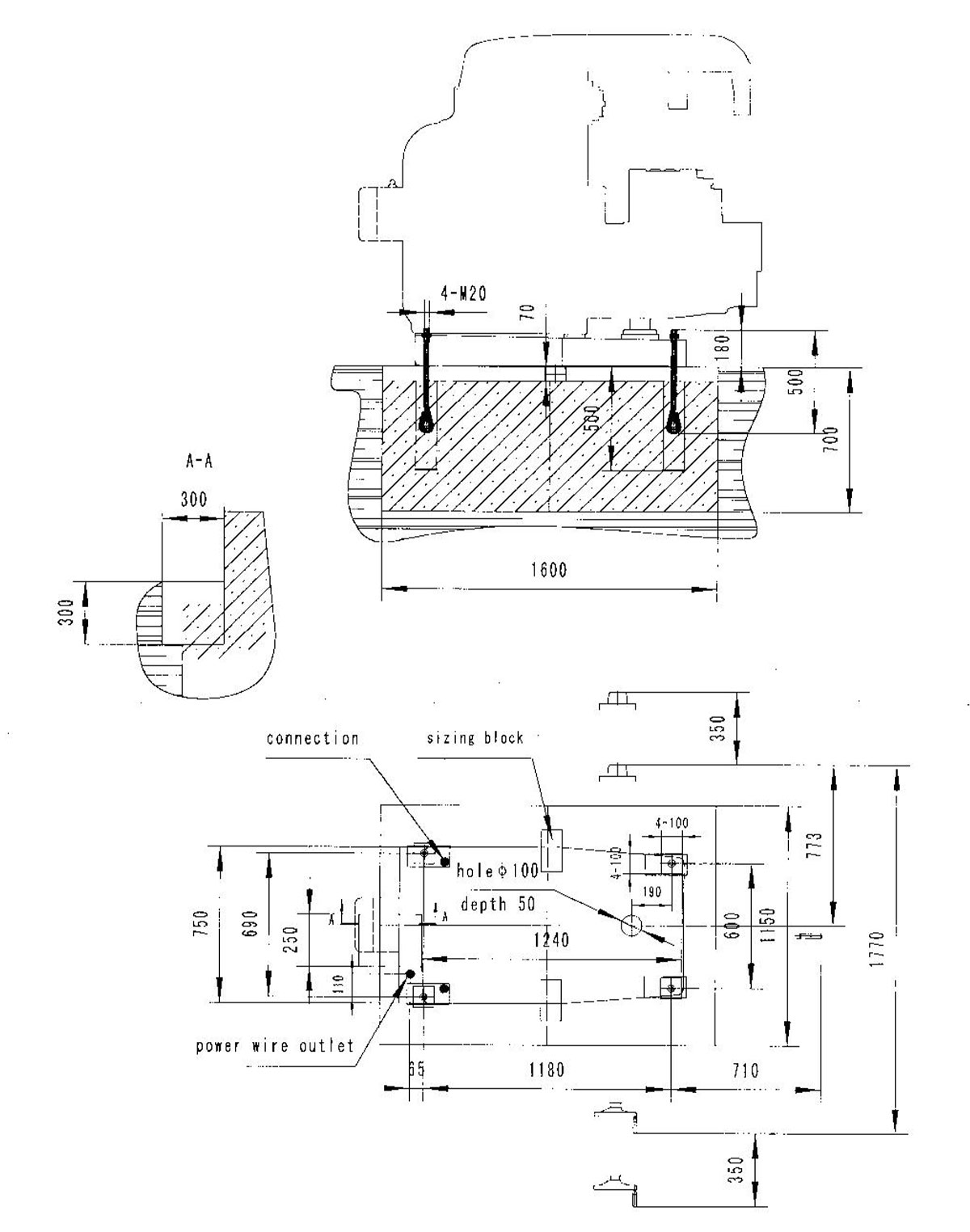
Taper ng pangunahing butas ng baras 7:24 ISO50
Distansya mula sa linya ng spindle center hanggang sa kama patayo gabay na riles 30-350 mm
Distansya mula sa linya ng spindle center hanggang sa suspension beam 155 mm
Siwang ng spindle 29mm
Pinakamataas na anggulo ng pag -ikot ng talahanayan ± 45 °
Saklaw/serye ng spindle 30 ~ 1500 rpm /18 na antas
Laki ng talahanayan 1320x320 mm
Table Stroke Longitudinal/Transverse/Vertical 700 (680/255 (240)/320 (300) mm
Saklaw ng feed ng talahanayan paayon/transverse/vertical Antas 18 23.5-1180/23.5-1180/8-394 mm/min
Ang talahanayan ng mabilis na paglipat ng patayo/pahalang/patayo 2300/2300/770 mm/min
Bilang, lapad, at spacing ng mga hugis na puwang ng workbench 3/18/70 mm
Pangunahing kapangyarihan ng motor 7.5kw
Pakainin ang kapangyarihan ng motor 1.5kw
Mga Dimensyon ng Makina (L x W x H) 2294x1770x1665 mm
Timbang ng Net Machine 2700/3000 kg $

Makipag -ugnay

+ SUBMIT
Ningbo Hongjia CNC Technology Co, Ltd.
Ningbo Hongjia CNC Technology Co, Ltd.
Ang Ningbo Hongjia CNC Technology Co, Ltd ay nagsimula noong 2006 at itinatag noong 2018. Matatagpuan ito sa Qianwan New District, Ningbo City, Zhejiang Province, South Wing ng China Yangtze River Delta Economic Zone. Ito ay isang enterprise na dalubhasa sa pananaliksik, pag -unlad, paggawa at pagbebenta ng kagamitan sa pagputol ng metal ng CNC. Bilang isang China X6132 Universal Lift Table Milling Machine supplier and custom X6132 Universal Lift Table Milling Machine company, Na may malakas na lakas ng teknikal at mayaman na karanasan sa industriya, ang Hongjia CNC ay nakatuon sa pagbibigay ng mga customer ng mga advanced na solusyon sa CNC upang matugunan ang mga pangangailangan ng mga customer sa iba't ibang industriya.
Halaman at kagamitan
  • Hitsura ng pabrika
  • Hitsura ng pabrika
  • Kagamitan
  • Kagamitan
  • Kagamitan
  • Kagamitan
  • Kagamitan
Ano ang balita
Kaalaman sa industriya

X6132 Universal Lift Table Milling Machine , bilang isang produkto ng Hongjia CNC, ay nanalo ng isang mataas na reputasyon sa maraming mga industriya para sa malakas na kakayahang pagputol ng metal at malawak na kakayahang magamit. Ang tool ng makina na ito ay hindi lamang mahigpit na sapat upang mapaglabanan ang mga operasyon ng pagputol ng mabibigat na pag-load, ngunit nilagyan din ng isang malawak na hanay ng mga bilis ng feed upang matiyak ang katatagan at kahusayan ng proseso ng pagproseso. Ang disenyo ng spindle taper hole ay nababaluktot, at iba't ibang mga cylindrical milling cutter, pabilog na mga cutter ng paggiling, na bumubuo ng mga cutter ng paggiling, mga cutter ng paggiling ng mukha, atbp ay maaaring mai -install nang direkta o sa pamamagitan ng mga accessories, na nagbibigay ng walang limitasyong mga posibilidad para sa pagproseso ng iba't ibang mga kumplikadong bahagi tulad ng mga eroplano, mga bevels, mga grooves, hulma, atbp. Mga motorsiklo at iba pang mga industriya.

Ang katangi -tanging pagkakayari, paghahagis ng mahusay na kalidad
Alam ng Hongjia CNC na ang mataas na kalidad ay nagmula sa panghuli pagtugis ng mga detalye. Ang mga pangunahing sangkap ng X6132 Universal Lift Table Milling Machine, tulad ng base, katawan, workbench, slide, pag-angat ng slide, atbp, ay lahat ay may mga mataas na lakas na materyales at artipisyal na may edad, na epektibong nag-aalis ng panloob na stress ng materyal at tinitiyak ang pangmatagalang katatagan at pag-aayos ng tool ng makina. Ang spindle ay nagpatibay ng mga tapered roller bearings, na sinamahan ng isang three-suport na istraktura, na hindi lamang may mahusay na rigidity ng system at malakas na kapasidad na nagdadala ng pag-load, ngunit nilagyan din ng isang aparato na nag-ubos ng preno, na may malaking metalikang kuwintas at mabilis at maaasahang pag-shutdown, na nagbibigay ng isang solidong garantiya para sa pagproseso ng mataas na precision.

Nababaluktot at mababago, pagpapalawak ng mga hangganan sa pagproseso
Upang matugunan ang iba't ibang mga pangangailangan sa pagproseso, ang pahalang na anggulo ng pag -ikot ng worktable ng x6132 unibersal na pag -aangat ng talahanayan ng paggiling machine ay maaaring umabot sa ± 45 °. Ang disenyo na ito ay lubos na nagpapalawak ng saklaw ng pagproseso ng tool ng makina. Kasabay nito, ang pangunahing bahagi ng paghahatid at feed na bahagi ng worktable ay nagpatibay ng isang istraktura ng paghahatid ng gear, na may isang malawak na saklaw ng regulasyon ng bilis at maginhawa at mabilis na pagbabago ng bilis, na ginagawang mas nababaluktot at mahusay ang proseso ng pagproseso. Sa mga tuntunin ng mode ng pagpapakain, ang mga direksyon ng X/Y/Z ng tool ng makina ay may tatlong mga mode: manu -manong pagpapakain, motorized feed at motorized mabilis na pagpapakain. Ang bilis ng pagpapakain ay maaaring nababagay na nababagay ayon sa iba't ibang mga pangangailangan sa pagproseso. Ang mabilis na pag-andar ng pagpapakain ay nagbibigay-daan sa workpiece na mabilis na maabot ang posisyon sa pagproseso, lubos na paikliin ang oras na hindi pagproseso at pagpapabuti ng pangkalahatang kahusayan sa pagproseso.

Paggawa ng katumpakan, pinalawak na buhay ng serbisyo
Sa mga tuntunin ng pagproseso ng detalye, ang X, Y, at Z Guide Rails ng X6132 Universal Lift Table Milling Machine ay na -ultrasonically quenched, katumpakan na lupa, at scraped, at ang sapilitang sistema ng pagpapadulas ay hindi lamang makabuluhang napabuti ang pagproseso ng kawastuhan, ngunit epektibo din na pinagsama ang buhay ng serbisyo ng tool ng makina. Ang aparato ng pagpapadulas ay maaaring pilitin ang pagpapadulas ng mga lead screws at gabay sa mga riles sa paayon, transverse, at vertical na direksyon, na epektibong binabawasan ang pagsusuot ng tool ng makina at tinitiyak ang mahusay at matatag na operasyon ng tool ng makina. Bilang karagdagan, ang sistema ng paglamig ay nababaluktot na inaayos ang daloy ng coolant sa pamamagitan ng pag -aayos ng nozzle upang matugunan ang mga pangangailangan ng paglamig sa ilalim ng iba't ibang mga kondisyon ng pagproseso, karagdagang pagpapabuti ng kalidad ng pagproseso at kahusayan.

Humanized Design, pinasimple na proseso ng operasyon
Ang Hongjia CNC ay ganap na isinasaalang-alang ang kaginhawaan ng pakikipag-ugnay ng tao-machine kapag nagdidisenyo ng X6132 Universal Lift Table Milling Machine. Ang pangkalahatang disenyo ng tool ng makina ay umaayon sa mga prinsipyo ng ergonomya, madaling mapatakbo, at madaling gamitin. Ang control panel ay nagpatibay ng isang disenyo ng graphic na simbolo, na kung saan ay madaling maunawaan at madaling maunawaan. Kahit na ang mga first-time na operator ay maaaring mabilis na makabisado ito, na lubos na binabawasan ang kahirapan ng operasyon at mapabuti ang kahusayan sa trabaho.

Huwag mag -atubiling makipag -ugnay kapag kailangan mo kami!